Facebook Email Phone
Facebook Email Phone
Menu

RAE Products & Chemicals Corp. - Providing the world's leading paints and chemicals

RAE Products & Chemicals Corporation

Primary Menu

Skip to content
  • Home
  • Products
    • Preformed Thermoplastic
    • 3M Traffic Markings
    • Paints & Coatings
      • Traffic & Zone Marking Paint
      • Masonry & Concrete Paint
      • Industrial & OEM Coatings
      • Paint Additives and Aggregates
    • Paint Spraying Equipment
    • Stencils & Templates
    • Reflective Glass Beads
  • Catalog
  • Blog
  • Product Technical Data
  • SDS Index by System
  • Product Catalogs & Flyers

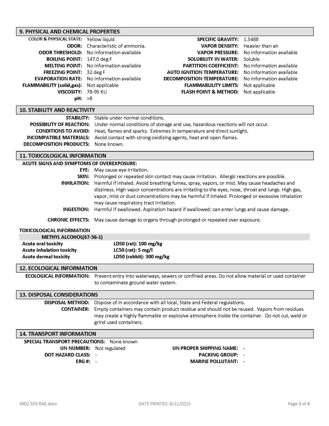
4902 Yellow – SDS

For Product SALES & SERVICE please call us at 1-708-396-1984 or email sales@raeproducts.net



  • RAE #4902 Yellow Regular Dry Latex Traffic & Zone Marking Paint - SDS
  • RAE #4902 Yellow Regular Dry Latex Traffic & Zone Marking Paint - SDS
  • RAE #4902 Yellow Regular Dry Latex Traffic & Zone Marking Paint - SDS
  • RAE #4902 Yellow Regular Dry Latex Traffic & Zone Marking Paint - SDS

Menu

Customer Reviews – RAE Products & Chemicals Corporation

Discover what our valued customers have to say about their experience with RAE Products & Chemicals. We take pride in delivering top-tier industrial coatings and unmatched customer service. Your feedback helps us continue to improve and provide the best possible solutions for your business. CLICK HERE to leave a review or read more about how we've helped others with their projects.

Bought a line stripper last fall from Kurt, he went above and beyond to get me the best deal possible. He threw in a few other items to help get me started with my new business venture. The staff is great as well. It was worth the drive (2hrs) and I know I can call on Kurt and his team anytime.
Google Logo
Ricky Ramirez Avatar
Ricky Ramirez
2/02/2025
Always a pleasure to deal with... Great customer service, and outstanding product quality... We have been a customer for many years, and plan on continuing the relationship. Al Schultz Sherwin Industries, Inc. Milwaukee, WI
Google Logo
Camden Schultz Avatar
Camden Schultz
9/17/2024
Kurt and his team at Rae Products do an excellent job handling our material needs for our permanent road striping business. They are dependable and resourceful when it comes to any material issues. We have used them for many years and will continue to do so for many more. - Aaron Krom Superintendent Marking Specialists Corporation
media thumbnail 0media thumbnail 1media thumbnail 2
Google Logo
Aaron Krom Avatar
Aaron Krom
9/14/2024
The best around for all your parking lot maintenance needs!!! Keil Morek and Rae products & chemicals has got my business on all my needs from this day forward! UPS messed up my shipment on a few different levels and Keil QUICKLY resolved the issues. Absolutely the best customer service out there. Thank you Keil Morek for your prompt and professional attention to my unique needs.
Google Logo
PHILIP GREENWOOD Avatar
PHILIP GREENWOOD
7/12/2024
The best around for all your parking lot maintenance needs!!!
Keil Morek and Rae products & chemicals has got my business on all my needs from this day forward! … More
Google Logo
PHILIP GREENWOOD Avatar
PHILIP GREENWOOD
6/27/2024
Great place
Google Logo
daniel oleary Avatar
daniel oleary
9/12/2022
My sales rep (morekko1) went out of his way to accommodate me. I would recommend and use this company again. Received my order and it was better than expected. High quality and exactly what I was looking for. Thank you. Karan Garner
Google Logo
Karan Garner Avatar
Karan Garner
9/12/2022

Copyright © 2026 RAE Products & Chemicals Corp. – Providing the world's leading paints and chemicals. All Rights Reserved. | Search Products at RAE ProStores Online
Scroll Up
  • Home
  • Products
    • Preformed Thermoplastic
    • 3M Traffic Markings
    • Paints & Coatings
      • Traffic & Zone Marking Paint
      • Masonry & Concrete Paint
      • Industrial & OEM Coatings
      • Paint Additives and Aggregates
    • Paint Spraying Equipment
    • Stencils & Templates
    • Reflective Glass Beads
  • Catalog
  • Blog
  • Product Technical Data
  • SDS Index by System
  • Product Catalogs & Flyers
✕